20x20 Master Suite Beautiful Excellent Floor Plans For Additions Master Bedroom Addition Master Suite Floor Plan Master Bedroom Addition Master Bedroom Plans

20x20 Master Suite Beautiful Excellent Floor Plans For Additions Master Bedroom Addition Master Suite Floor Plan Master Bedroom Addition Master Bedroom Plans

Best 20 X 20 Master Bedroom Plans Master Bedroom Plans Master Bedroom Addition Master Bedroom Layout

Best 20 X 20 Master Bedroom Plans Master Bedroom Plans Master Bedroom Addition Master Bedroom Layout

20x20 Master Bedroom Floor Plan Vanity Ideas For Bedroom Check More At Http Iconoclastradio C Master Bedroom Layout Master Suite Layout Bedroom Floor Plans

20x20 Master Bedroom Floor Plan Vanity Ideas For Bedroom Check More At Http Iconoclastradio C Master Bedroom Layout Master Suite Layout Bedroom Floor Plans

20x20 Master Bedroom Floor Plan Amazing Bedroom Designs Beautiful Bedrooms Beautiful Bedroom Designs

20x20 Master Bedroom Floor Plan Amazing Bedroom Designs Beautiful Bedrooms Beautiful Bedroom Designs

Fancyhomedesign Com Master Bedroom Layout Master Suite Floor Plan Master Bedroom Addition

Fancyhomedesign Com Master Bedroom Layout Master Suite Floor Plan Master Bedroom Addition

20x20 Master Suite Addition Google Search Master Suite Floor Plan Master Bedroom Addition Master Suite Addition

20x20 Master Suite Addition Google Search Master Suite Floor Plan Master Bedroom Addition Master Suite Addition

20x20 Master Suite Addition Google Search Master Suite Floor Plan Master Bedroom Addition Master Suite Addition


64 Stylish 20x20 Master Bedroom Floor Plan

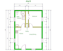
20x20 master bedroom floor plan. The master bedroom plans with bath and walk in closet is one of the most trendy and widely used floor plans for the master bedroom. Check out the primary bedroom floor plans below for design solutions and ideas. For the first idea let us take a look at this square master bedroom plan with the size of 20 x 20. Layouts of master bedroom floor plans are very varied.

The attached bathroom is split with the large jetted tub to the left and a private door to house the toilet. Master bedroom suite floor plan 20 x 30 20 x 14 master suite layout google search le petit. Master suite layout attic master suite master bedroom addition master bedroom plans master bedroom bathroom bathroom closet master suite floor plan bath room master closet. 20x20 master bedroom floor plan floor matttroy 20 x 14 master suite layout google search le petit.

Master bedroom floor plans. Even though there are many other different types of plans that the people use these days for the master bedroom but this one is something that is very highly requested. Best 20x20 master bedroom floor plan with pictures. Originally it is a part of a home extension project.

If you are looking for best 20x20 master bedroom floor plan with pictures you ve come to the right place. There is plenty of room to house two dressers on the partial wall separating the bedroom from the bathroom. The complete floor plan of a 20 x 20 master bedroom extension. Are you looking for best 20x20 master bedroom floor plan with pictures.

This primary bedroom floor plan has a large and open area for the bedroom with enough space to accommodate a couch in the room. The bedroom should paint a calm and relaxing atmosphere so it would do more harm than good overcrowding it with fussy decorations or a host of busy patterns. Remember you ll be staying a good amount of time in your bedroom so you might as well do the layout right. It means the room area is a new part built and connected to the existing house.

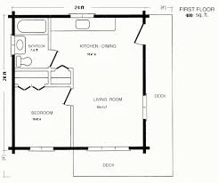
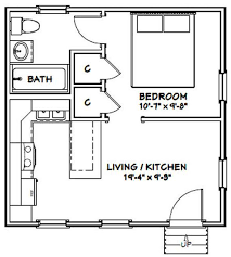
See more ideas about bedroom floor plans floor plans master bedroom. Master bedroom suite floor plan 20 x 30. 20 x 20 master bedroom plans elegant 5 master suite design. They range from a simple bedroom with the bed and wardrobes both contained in one room see the bedroom size page for layouts like this to more elaborate master suites with bedroom walk in closet or dressing room master bathroom and maybe some extra space for seating or maybe an office.

26 photos and inspiration master suite layouts house. Mar 21 2019 on this board you ll find a selection of master bedroom floor plans all with an en suite some with walk in closets.


20x20zoeoutdoorsportable2bedroomcottage Jpg Floor Plans Apartment Plans Garage Apartment Plans

20x20zoeoutdoorsportable2bedroomcottage Jpg Floor Plans Apartment Plans Garage Apartment Plans

Login Log Cabin Water Tight Materials Studio Floor Plans Tiny House Floor Plans Small Floor Plans

Login Log Cabin Water Tight Materials Studio Floor Plans Tiny House Floor Plans Small Floor Plans

Bedroom Design Ideas Master Bedroom Plans Master Suite Floor Plan Bedroom Floor Plans

Bedroom Design Ideas Master Bedroom Plans Master Suite Floor Plan Bedroom Floor Plans

Image Result For 20x20 House Plans 3 Bed 1 5 Bath Tiny House Floor Plans Studio Floor Plans How To Plan

Image Result For 20x20 House Plans 3 Bed 1 5 Bath Tiny House Floor Plans Studio Floor Plans How To Plan

Bedroom Floor Plans 20x20 Apt Floor Plan Floor Plan 20 X 20 Zoe Outdoors Portable Mesmerizing 2 Bedroom Tiny House Floor Plans House Plans Cabin Floor Plans

Bedroom Floor Plans 20x20 Apt Floor Plan Floor Plan 20 X 20 Zoe Outdoors Portable Mesmerizing 2 Bedroom Tiny House Floor Plans House Plans Cabin Floor Plans

20x20 Tiny House 1 Bedroom 1 Bath 400 Sq Ft Pdf Floor Plan Instant Download Model 1 In 2020 Tiny House Floor Plans Studio Floor Plans Small House Floor Plans

20x20 Tiny House 1 Bedroom 1 Bath 400 Sq Ft Pdf Floor Plan Instant Download Model 1 In 2020 Tiny House Floor Plans Studio Floor Plans Small House Floor Plans

20x20 Tiny House 1 Bedroom 1 Bath 400 Sq Ft Pdf Floor Etsy In 2020 Small Apartment Floor Plans Floor Plans Studio Floor Plans

20x20 Tiny House 1 Bedroom 1 Bath 400 Sq Ft Pdf Floor Etsy In 2020 Small Apartment Floor Plans Floor Plans Studio Floor Plans

20x20 Houses Pdf Floor Plans 683 Sq Ft Cabin Floor Plans Floor Plans Tiny House Plans

20x20 Houses Pdf Floor Plans 683 Sq Ft Cabin Floor Plans Floor Plans Tiny House Plans

20x20 Tiny House 1 Bedroom 1 Bath 400 Sq Ft Pdf Floor Plan Instant Download Model 1c In 2020 Small House Floor Plans Tiny House Layout Tiny House Floor Plans

20x20 Tiny House 1 Bedroom 1 Bath 400 Sq Ft Pdf Floor Plan Instant Download Model 1c In 2020 Small House Floor Plans Tiny House Layout Tiny House Floor Plans

20x20 Tiny House 1 Bedroom 1 Bath 400 Sq Ft Pdf Floor Plan Instant Download Model 1b In 2020 Small House Floor Plans Tiny House Floor Plans Tiny House Layout

20x20 Tiny House 1 Bedroom 1 Bath 400 Sq Ft Pdf Floor Plan Instant Download Model 1b In 2020 Small House Floor Plans Tiny House Floor Plans Tiny House Layout

20x20 Tiny House 1 Bedroom 1 Bath 400 Sq Ft Pdf Floor Plan Instant Download Model 1b In 2020 Small House Floor Plans Tiny House Floor Plans Tiny House Layout

20x20 Tiny House 1 Bedroom 1 Bath 400 Sq Ft Pdf Floor Plan Instant Download Model 1b In 2020 Small House Floor Plans Tiny House Floor Plans Tiny House Layout

Tranquil Cottages Tranquil Floor Plans Garage Apartment Floor Plans Apartment Floor Plan Floor Plans

Tranquil Cottages Tranquil Floor Plans Garage Apartment Floor Plans Apartment Floor Plan Floor Plans

400 Sq Ft Floor Plans Yahoo Image Search Results Small Apartment Plans Small Apartment Floor Plans Studio Apartment Plan

400 Sq Ft Floor Plans Yahoo Image Search Results Small Apartment Plans Small Apartment Floor Plans Studio Apartment Plan

Luxury Master Bedroom Suite Floor Plans Ikea Bedroom Ideas Bedroom Ideas Ikea Beauteous Yo Master Bedroom Addition Master Bedroom Plans Luxury Bedroom Master

Luxury Master Bedroom Suite Floor Plans Ikea Bedroom Ideas Bedroom Ideas Ikea Beauteous Yo Master Bedroom Addition Master Bedroom Plans Luxury Bedroom Master

Source : pinterest.com